新作|有物空间设计 × 鮨十五

2025-10-20 21:01
  
That small scene is the junction of the inside and the outside. People look at me, and I look at others. The breaths blend together, forming a world of their own.

                            

                            

                            

                            

                            
2025
27
日,第一次看现场,项目位于光环购物公园户外中心区域二楼,场地是一个小铺
原本商业的公共卫生间,总共室内
70
平左右。一面玻璃幕墙,三面实体墙。

                            

                            
项目初始外部环境

                            
时间,是前期最棘手的问题——现有小铺仍在租赁期,撤场时间是
月中旬,而项目甲方则计划
月中旬开业。若按常规方式待前商业撤场再复尺设计,设计时间
施工时间赶在
月中旬这个节点是定然无法实现的。

                            
设计团队试图透过现有格局预判拆除后的模样,结合建筑图纸复核了外围能确定的尺寸,也根据现场情况预判了拆除后可能遇到的问题,所幸基本预判准确,为紧促的工期省下了宝贵的时间。

                            

                            

                            

                            
大部分城市商业体中的
omakase,
寿司师傅背后都是一面实体墙,或有挂画或有一些设计过的造型,客人在观赏寿司师傅做餐之余,更多是一种“面壁”之感。而业主和设计团队希望带给客人一种自然且轻松的用餐氛围......

                            
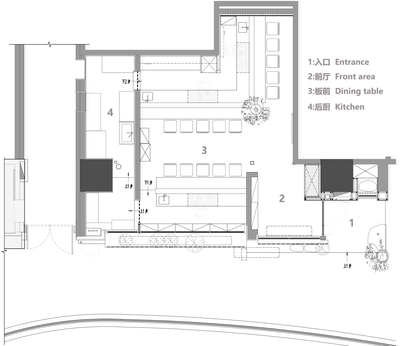
七十平米,要容纳后厨与客座,每个决定都像是在做减法。除去厨房的必要面积,在仅剩的空间内,设计团队梳理出亟待解决的四
大问题
如何在保证用餐空间面积足够的条件下,让入口有恰到好处的进入仪式感?

                            

                            

                            
2、
如何在保证舒适度的前提下,实现尽量多的客座数?
omakase
不同于其他餐饮类型,它必须要结合每位师傅最大且最佳对应客人的数量,从而节约运营过程中的人力成本。

                            

                            

                            
3、
如何让每张板的客人在用餐时都拥有相应景观视角,使
每个座位都拥有属于自己的风景?
这不单指窗外的绿意,更是板前料理呈现时那份专注的美感。

                            

                            
4、
如何最大限度的
节约造价?
这是有物空间设计团队每个项目都会思考的问题。

                            
——在常见的材料中去寻找细节的不同之处。

                            

                            
外立面是一款特别的火山石,表面有洞石般的肌理。设计团队寻遍重庆的石材市场,都无法呈现设计所希望的质感,几经寻觅后,最终在网上定制出这种洞石荔枝面的肌理感。

                            

                            
在设计过程中,有物空间设计团队根据空间气质给到了
室内浅色石材
不同于常规的排版尺寸;
在安装好后,也手工微凿了一些细节。这些都是不用额外增加成本又能获得一些特别细节的手段。

                            

                            
有几处发光的画面,为了让观者细看时质感更趋完美,在与平面设计一力老师反复沟通后,最终采用障子纸进行定制。质感和透光细节都优于传统发光灯膜,凭添几分手作的细腻。

                            

                            

                            
——与灯光设计团队几番沟通后,用最少的灯具,营造出了绝佳的光影氛围。

                            

                            

                            
板前每位客人的食材都被恰到好处的灯光照射出其最好的纹理与色泽。同时为了让后期运营过程中更方便实用,灯光也会根据不同的营业时段去自动切换不同的氛围,减少了人工调整的繁琐。

                            
方案过程中,项目名称确定为“鮨十五”,恰巧板前设了十五个座位,算是无形中不谋而合的默契吧。

                            
经历的每一个项目,有物空间设计都会综合产品、客单、造价、在地等因素,从中寻找到属于“它”的独特语言。
有物空间设计
始终相信,每个空间都应该有自己独特的呼吸,即便使用相同的材料、延续相同的视觉体系,在不同环境里生长出的空间,也会有属于自己的表情。

                            

                            

                            
正因如此,设计团队对每个项目都怀揣期待,也满心敬畏。

                            

                            
平面图
项目名称
|鮨十五
项目地址|中国|重庆
项目面积|90㎡
设计年份
|2025年07月
完工时间
|2025年09月
设计公司
|有物空间设计
服务内容|硬装、软装、施工
主创
设计
阙桂平、黄磊
设计团队|皮宏林
项目施工|淡顺祥
品牌设计|一记设计 / 张一力
照明设计|玖烛照明
景观设计|芳汀造景
项目摄影|白川 / 有物空间设计

                            

                            
阙桂平(左)黄磊(右)
有物空间设计
联合创始人

                            
有物
空间
设计,设立于重庆,一个以设计为导向的专业顾问团队,专注于商业空间设计。我们始终坚持以市场为导向,建立合理有效的运营、品牌、体验、空间与艺术思维架构。我们希望自己是发现者,不断去发现空间独特的场所感与幸福感,让一切变得生动起来
......
我们同时也是倾听者,倾听来自人、空间、环境的声音,通过创造和谐的关系,去找到持久的解决方案。

                            

                            

                            

                            

                            

                            

                            

                            

                            

                            

                            

                            

                            

                            

                            

                            

                            

                            

                            

                            
   

采集分享

举报

撒旦的表妹

什么也没写

281 作品/ 0 人气

  • 别默默的看了,快登录帮我评论一下吧!:)

    注册 登录

    更多评论

    推荐作品


    相关文章

    下载

    加入到画夹管理

    添加画夹

    提示

    右键保存、高清大图仅支持VIP会员
    名师作品集【专享】
    全网名师最多、更新最快、作品最全
    作品库【无限查阅、一键下载】
    全球最大室内作品库,超33万部
    精品资料【下载】
    全年精品资料更新超1000部
    灵感搜索【原图下载】
    中文搜索全球顶尖案例灵感图
    设计师生活馆【内购价】
    5大电商平台官方合作,专享内购价
    CAD库【模型下载】
    cad单体模型库精准搜索查找下载
    免广告打扰【屏蔽】
    屏蔽全站广告,享受纯净体验
    3D模型【送199币值199元】
    分享全网最新精品3D模型
    名师与资料完善后,价格涨至699元/年