






0
0







0
10





0
10




0
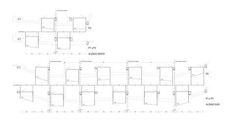
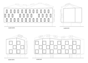
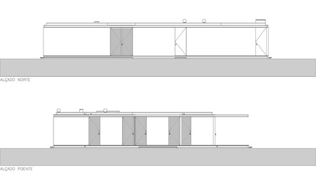
18

0
0


0
0







0
10







0
0














