之一空间设计事务所|送给老城的“里物” 里物烘焙店

2025-10-23 19:16
  
李想
当日光褪去,暮色降临,室内暖光透过玻璃顶,与老街渐次亮起的灯光交融。我们忽然明了:最好的设计,并非无中生有的创造,而是一种温柔的唤醒。 它唤醒沉睡的空间,唤醒被忽略的自然,也唤醒深植于我们内心的、对美好生活的感知力。里物,便是这样一处唤醒之所。

                            
之一空间设计事务所

                            
“里物”烘焙店位于河南西峡一片密集的老城区中。项目起始于一栋传统的砖混结构民宅,其原始的封闭结构、
3.8
米的层高以及一个被遮盖的天井,使得内部空间昏暗而局促。业主希望将其改造为一个集烘焙工坊、咖啡茶饮与社区客厅功能于一体的复合空间,并要求保留在地街巷的烟火记忆。

                            
项目外立面
李想

                            
室内空间概览
李想
设计的挑战在于如何打破固有界限,在狭小空间内引入光,让老建筑获得新生,并融入当代社区生活。于是我们决定以
“自然渗透”为核心理念展开设计,我们希望它不只卖面包,更成为老街生活情绪的延续。

                            
自然渗透
李想
设计的核心动作很坚决:拆除原有天井的封闭顶面,以一个轻盈的钢结构玻璃采光顶取而代之。这一举动,让建筑拥有了一个会呼吸的
“生态中庭”。阳光、风雨、落叶自此成为空间的常客,光影随时间在微水泥墙面与莱姆石地面上游走。

                            
天井中庭全景
李想
我们为天井设计了一套隐形的雨水管理系统,使其可随天气在
“干燥的日光庭院”与“湿润的反射池”两种模式间自由切换。空间的情绪,自此由自然天气定义。顶部电动窗帘
50%
透光设计,过滤午后强光。四壁保留原始砖墙肌理,采用微水泥进行防潮处理。

                            
天井下的卡座区
李想
店门头以
“自然质感与温暖氛围的融合”为理念,选用深棕色金属板材经做旧处理,复刻出木质的温润与时光的痕迹。沉稳的色调与内部暖光相呼应,多层次错落结构强化了视觉厚度,下方通透的玻璃橱窗与开放入口,将店内温馨场景悄然外露,吸引行人驻足窥探。

                            

                            
通透的玻璃让整个室内都能享受到自然光
李想
我们保留的原建筑结构作为基底,新建玻璃顶棚轻盈架设,环岛式功能布局与回游动线有机串联,入口被刻意收束为
1.2
米,再现了老城窄巷的尺度。这短暂的“压抑”,是为了迎接步入中庭时那份豁然开朗的震撼。

                            
轴测图
之一空间设计事务所

                            
走道尽头是烘焙操作间
李想
环绕天井,我们布置了一条回游动线:透明玻璃与窑变砖砌筑的开放后厨、散座区、以及一侧阶梯式阅读区被流畅串联,人在其中行走,视线却始终与自然、与他人、与烘焙的烟火气轻柔相接、相连。

                            
面包甜品柜台
李想
烘焙工坊向客区开放,工作台高度设定在
850mm
的最佳观赏视角,让顾客可以看到面包制作的全过程。设备区与客区保持
米的安全与舒适距离,并通过负压系统解决油烟问题。定制的黑色哑光金属货架,兼具面包陈列与工艺展示的双重功能,使功能本身成为一种装饰。
咖啡吧台
李想

                            
卡座观景位
李想

                            
喝咖啡吃甜点,看他人生活叙事
李想

                            
阶梯式休憩区
李想
阳光透过天井的玻璃顶,在陶土墙面留下斑驳的光影,莱姆石地面映出温润的反光,老木家具在岁月中愈发深沉
——这三种天然材料共同构筑了一个会呼吸的空间,让老街焕发新的生命力。

                            
客座区
李想

                            
室内陈设细节
李想
当日光褪去,暮色降临,室内暖光透过玻璃顶,与老街渐次亮起的灯光交融。我们忽然明了:最好的设计,并非无中生有的创造,而是一种温柔的唤醒。
它唤醒沉睡的空间,唤醒被忽略的自然,也唤醒深植于我们内心的、对美好生活的感知力。里物,便是这样一处唤醒之所。

                            
材质细部
李想
项目图纸

                            
平面图
之一空间设计事务所

                            
立面图
之一空间设计事务所

                            

                            
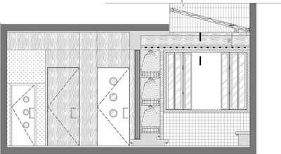
剖面图
之一空间设计事务所
项目名称:里物烘焙
项目类型:建筑改造、庭院设计、室内设计
设计方:之一设计研究室
联系邮箱:
asd2528316@gmail.com
设计时间:
2024
11
竣工时间:
2025
主创及设计团队:
主持设计:李强
主案设计:杨紫婷
团队:胡舒展
邬成昊
张婧瑜
项目地址:中国
·河南·西峡
建筑面积:
120
摄影版权:李想
材料:树瘤木饰面、陶土方块、艺术涂料、锈板

                            
   

采集分享

举报

蒲末释

什么也没写

409 作品/ 0 人气

  • 别默默的看了,快登录帮我评论一下吧!:)

    注册 登录

    更多评论

    推荐作品


    相关文章

    下载

    加入到画夹管理

    添加画夹

    提示

    右键保存、高清大图仅支持VIP会员
    名师作品集【专享】
    全网名师最多、更新最快、作品最全
    作品库【无限查阅、一键下载】
    全球最大室内作品库,超33万部
    精品资料【下载】
    全年精品资料更新超1000部
    灵感搜索【原图下载】
    中文搜索全球顶尖案例灵感图
    设计师生活馆【内购价】
    5大电商平台官方合作,专享内购价
    CAD库【模型下载】
    cad单体模型库精准搜索查找下载
    免广告打扰【屏蔽】
    屏蔽全站广告,享受纯净体验
    3D模型【送199币值199元】
    分享全网最新精品3D模型
    名师与资料完善后,价格涨至699元/年